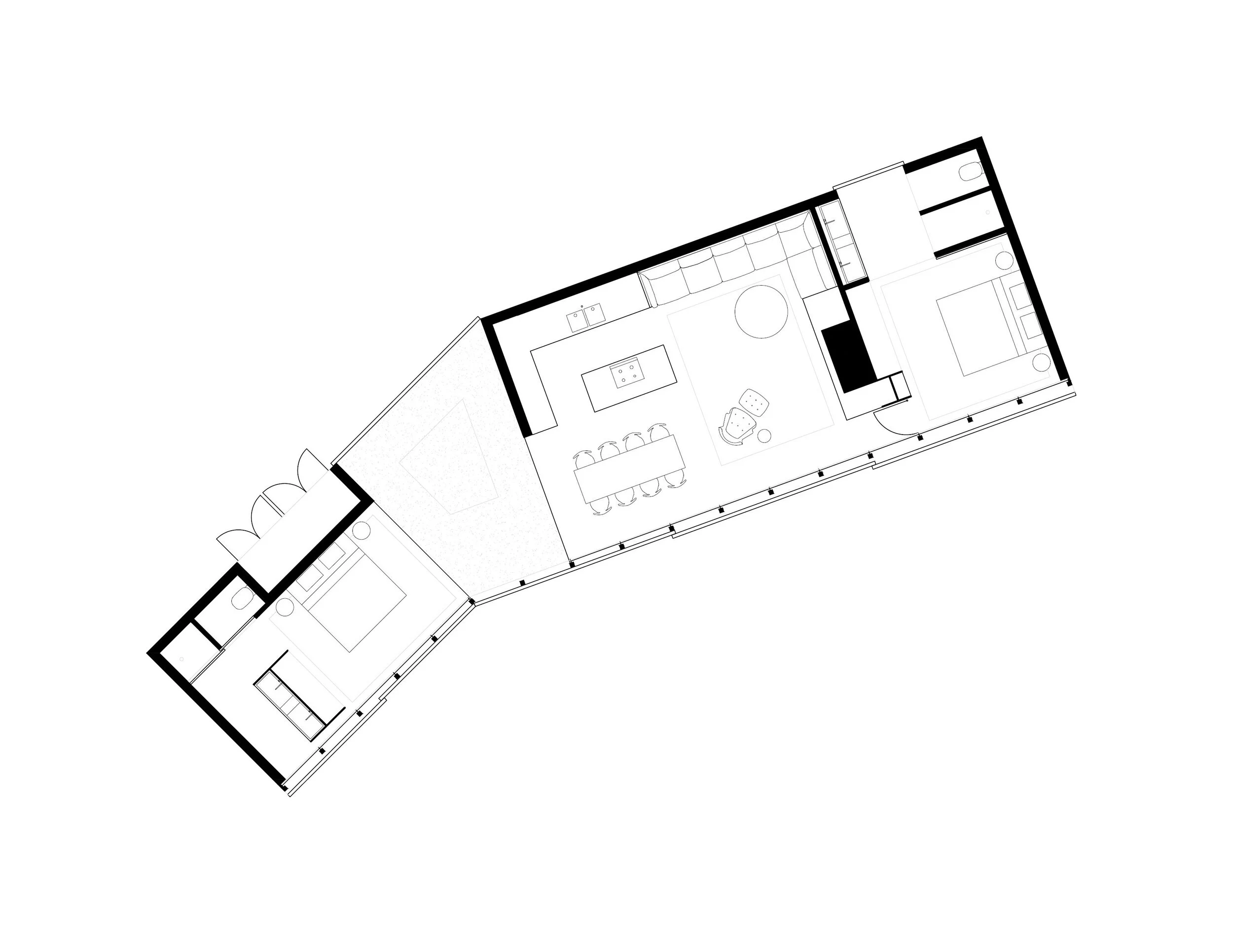
The Mount Irvine House is located on a steep escarpment on the edge of the immense Wollemi National Park. Two wings, the main residence and a guest suite, protect a central hearth open to the sky
Status: Awaiting approval
The Mount Irvine House is located on a steep escarpment on the edge of the immense Wollemi National Park. Two wings, the main residence and a guest suite, protect a central hearth open to the sky
Status: Awaiting approval